车库停车场地坪
环氧树脂地坪
密封固化剂地坪
聚氨酯地坪
防腐蚀地坪
防静电地坪
运动场地坪
无机磨石地坪
压花地坪
透水混凝土地坪
泼墨地坪
工业厂房地面
车库停车场地坪
耐磨地坪
GMP洁净地坪
混凝土地坪
CKTCC地下车库停车场设计
发布时间 : 2024-04-10
作者 : 喜邦中国
访问数量 : 19164
扫码分享至微信

CKTCC中心地下车库停车场设计 CKTCC是车库停车场的简称,CKTCC中心的网址为cktcc.com

一、地库规模

地下车库设计规模-------设计依据
1、依据各地方停车位配建标准(或规划要点)进行配建车位计算,确定项目所需总车位数。
2、落实当地是否容许设置地上停车位,若容许,其上限比例多少。
3、落实当地是否容许子母车位、微型车位等非标车位布置及其折减系数。

车库停车场设计
4、落实各业态比例,如住宅、商业、办公等配建车位指标均不一样。
5、地上停车位的设置原则:优先商铺前设置停车位,再而小区、周边设置停车位,最后在小区内部设置停车位。
6、内部停车位设置注意事项:
•做法要便于后期改造覆率,后期保证小区内人车分流。(需要结合小区的景观设计,或者结合甲方验收后的改造方案)
•退让出核心景区,保证后期园林品质。
•注意消防要求
a.车位距离楼栋6m(个别规划部门不要求)
b.避开消防登高面
地下车库规模设计控制要点:
配建车位数量刚好满足报建要求和实际功能需求即可,严格控制地下车库面积规模。
充分利用地上停车配额,在满足绿地率的的条件下,充分利用地上停车。
标准车位优先原则,然后再布置子母车位及微型车位。
二、地库轮廓
设计原则
1、地下室轮廓尽量充分利用退线条件,能地下一层满铺做足车位绝不多做一层地下室。
楼层车库设计
注:一层地下室叠成两层时,导致成本增加因素有:无效面积增加(车道、塔楼下面积),支护、土方开挖、基础、施工条件、工期。
2、地下室轮廓尽量趋向正方形,尽量避免窄长形
车库轮廓规范
如上图理论分析,同样的地块面积,越狭长,周长越长,地块付出支护及侧壁成本越高。
3、地库无效空间---地下室轮廓出现大量斜边、锐角,过多折边。
车库边界规范
车库边界规范案例
车库边界规范案例
说明:地下室轮廓总体简洁,方正;避免局部无必要的转折。
地下室轮廓尽量与原有塔楼竖向构件重合-----最大限度减少侧壁外墙及基础成本投入。
三、柱网分析
1.jpg
2.jpg
3.jpg
1、地库柱网分析——“大柱网“形式
•一般情况推荐7800x8100柱网形式,对于高端项目(可适当加大至8100x8100)。
4.jpg
5.jpg
2、地库柱网分析——“中柱网“形式
•一般情况推荐7800x(5000+6100)柱网形式,对于高端项目及特殊地区可根据项目情况进行适当调整。
6.jpg
7.jpg
地库柱网分析——“小柱网“形式
•一般情况推荐5300x(5000+6100)柱网形式。
•由于“小柱网”形式经济性相对于大、中柱网形式略好,但对停车和视觉舒适性影响较差,不推荐此柱网形式,中高端项目需谨慎使用。
•结构柱边离停车位50mm是预留完成面及防撞设施的尺寸。
8.jpg
9.jpg
总结:柱网选用需根据停车位、行车道基本尺寸选取以及项目的定位,地下层高,人防等级、地上建筑柱距、地方习惯等综合选择适合的柱网尺寸。
10.jpg
消火栓的放置位置及立管情况
(1)柱子侧面,消火栓门面向车道
(2)柱子前方,消火栓门面向车道
(3)柱子侧面,消火栓门面向车
侧放消火栓需要做支架或者砌墙固定
四、平面布置
1、停车效率
•车位布置应避免单边停车。车库布置尽量双边垂直停车,尽量少布置平行停车数量
一般情况下,沿地库长边布置车位,避免沿短边布置车位【以项目所需停车数1000(个)为例,
11.jpg
停车效率每减少1,即地库面积可减少1000*1=1000m2,若以地库单方建造成本0.3(万)来算,可减少成本0.3*1000=300(万)】
横向为长向,如沿此向布置车位,可减少车道面积,增加车位数。
2、坡道布置
2.1地库内(单、双)坡道,垂直于车道布置,避免平行布置,提高停车率。
2.2一般情况下,尽量上下坡道叠放布置,提高停车整体效率。
2.3一般情况下,避免地库中间设置弧线坡道,除了停车效率低还常常打乱地库停车流线。
12.jpg
13.jpg
14.jpg
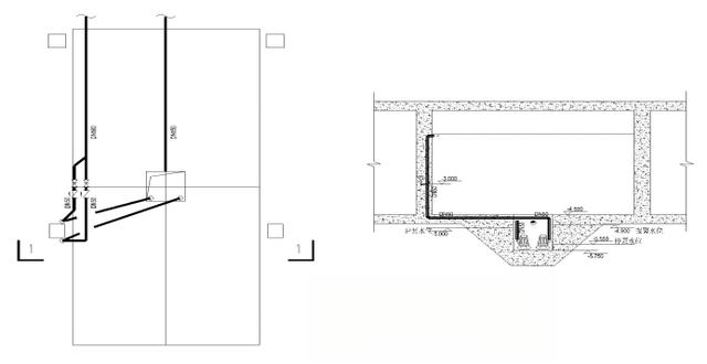
五、排水设计
1、地库排水主要有设置明沟排水或浅槽排水。
2、由于车库水量很小,可以建议开发商只做集水坑,在积水坑周围2米范围内找坡1%。
3、地库底板找坡、顶板找坡或地库底板和顶板结合场地竖向均找坡,此种做法优点:
1)解决场地高差,顶板覆土相对平均,不会出现大面积覆土过厚的情况。
2)地库内高差不用单独做坡道解决,增加了停车数量。
3)地库顶板可以根据具体情况取消找坡层,节省造价。
4)地库内排水较好,只在低处做排水沟或集水坑就可。
缺点:剖面需要标明每个柱顶标高。
15.jpg
16.jpg
集水坑布置
1、需要设置集水坑的几种情况:
1)地下室坡道入口处
2)消防电梯集水坑:大于2m3
3)水暖设备用房集水坑
4)地下室地面集水坑:(一般一个防火分区设置2~3个集水坑)
5)地下室生活污水集水坑
6)人防集水坑:(主要出入口、设有进风口的出入口)
7)采光井处雨水集水坑
2、集水坑布置原则
1)避开结构基础承台、地梁布置;
2)尽量避开车道、车位、电梯前室布置;当无法避免时应尽量减小其影响,集水坑位置宜尽量布置在不显眼的地方。
3)排水管出集水坑应靠墙角或柱子边隐蔽敷设,减少所占用的空间以免影响业主使用。如果集水坑距离墙角柱边较远则应使用管道在地面沟槽敷设或预埋引致墙角柱边后再设立管排出。立管上的阀门仪表宜在天棚下设置,可减少立管的占地空间。
3、多层地下室地漏设置
1)当项目设有2层及更多层地下车库时,最下一层车库设置集水坑,其他层可设置地漏,在地漏周围找坡1~2米范围内找坡。
2)地漏位置应躲梁,地漏尽量靠柱角设置,不占车位及车行道。
3)注意地漏立管应靠近柱子,立管到底层后连到集水坑内。
17.jpg
六、坡道出口
1、规范修改对比
18.jpg
19.jpg
总结:地下车库坡度宽度在满足规范和使用要求的情况下,双坡道改为单坡道大大提高停车效率。
20.jpg
21.jpg
总结:多层地库时,除出入口坡道外,坡道宽度可按照坡道最小净宽设计。
2、地下车库出入口坡道——设计原则
地下车库坡道的曲线坡度设计最大坡度12%,直线坡道最大坡度15%,曲线所占地下车库跨数明显大于直线坡道
地下车库的坡道的汽车最小转变半径为6米,不要理解为是车道最小内径,导致车道内径过大,相应增加增加车库面积。
22.jpg
23.jpg
小结:
1、地下车库出入口处坡道,单车坡道净宽≥4.0m设计,双车坡道净宽≥7.0m设计。
2、地下车库机动坡道转弯内径按4米设计、停车区内半径按3米设计。
3、地下车库的坡道的应优先设计直线坡道。
4、除地下车库地面出入口坡道外,其他楼层坡道按现行规范最小原则设置。
七、地下车库人防设计
1、地下车库设计的先后原则:应先平时后战时,车位及平面布置最优后再考虑人防平面。
2、符合地下室全埋要求——人防地下室顶板厚度可以凸出室外地坪,可以理解为全埋。
24.jpg
总结:此做法可减少地下室埋深,达到少挖土方的目的。
3、地下车库的人防设计——平面原则
25.jpg
26.jpg
结论:人防地下室时应集中靠边墙设置,并置于最底下一层。
3.1地下车库的人防设计——多层地下室人防设置
当人防面积较大,且地下室为多层地下室时,可以考虑是否叠层设计。
3.2地下车库人防设计——单元划分
人防地下室布置的最大限制就是平时地下室的防火分区布置,所以当有人防功能配置的地下室,防火分区和人防分区需同时考虑。
结论:所以在考虑防火分区时,应尽可能拉大至4000平方米,扣除楼梯间、核心筒等非人防面积,一个最大的防火分区所得有效的人防建筑面积约3800平方~3900平方米。
27.jpg
3.3影响人防地下室造价的首当其冲的是人防区与室外或者非人防区的人防大门和单元内部分割的车道连通口的封堵板,其他各单元内的设备和人防土建的成本既定变数不大。
目前一个人防六米宽大门的成本约20~30万左右,单元连通口封堵板按每平方米计算(约8000元每平方米),一个六米宽的封堵板,高度为2.5米,成本=6*2.5*8000=12万左右。
单元分割墙主要是指人员掩蔽单元之间的分割墙.合理的分割墙布置可以有效降低封堵板数量,减少墙体长度,增加地下室通透性。
在人防地下室布局时应充分考虑人防车道大门数量,是降低成本最有效的地方之一,有必要时可以适当调整停车位和车道流线以配合之,成效显著。
28.jpg
结论:地下车库的人防掩蔽单元之间的人防分割墙和车道连通口的封堵板数量应以最少原则设置。地下车库的人防区与室外或非人防区间的人防分割墙数量过多也会造成成本增加。
29.jpg
3.4人防口部:
1、充分利用坡道作为主要出入口,大大减少占车位的疏散楼梯布置数量
2、这里效率最高的就是直接出到室外的车道出入口可视为主要出入口。应将防护单元布置在车道两侧,两边均为人员掩蔽或一边为人员掩蔽,另一边为物资库时可共用一个室外出入口。
3、车道宽度为5~7米宽,对于车道宽度应充分利用,除作为主要出入口外,还可以附加次要出入口。
30.jpg
31.jpg
4、注意人防门的打开情况,及对车位停放的影响。
说明:由于人防门的厚度、卷盘等占用一定宽度,建议车位离侧墙距离不少于700,以免影响人防门打开。人防门开启一侧,门扇是贴墙安装,该侧不能装防火卷帘。因为门洞高度受限,卷帘只能装在人防墙另一侧,对双帘双轨防火卷帘,需预留导轨安装空间,不能占用车位有效面宽。
结论:通过调整局部柱跨给人防门(消防卷帘)留安装空间。
32.jpg
33.jpg
34.jpg
5、层高净高过矮人防门安装困难;人防开启范围与管线冲突
当层高较低时候,管线综合时需复核人防门开启是否会跟管线冲突。(还需要注意人防门附近是否有梁,是否影响人防门的开启)。
35.jpg
小结:
1、人防地下室应集中靠边墙设置,并置于最底下一层。
2、地下车库的人防分区和防火分区要结合考虑。一个防火4000方分区内设置两个防护单元,避免无谓增加人防单元。
3、人防分区划分应以人防门数量最少原则设置。人防分区划分应以人防墙长度、封堵板数量最少原则设置,人防设计应精细化设计,减少占用车位
4、应充分利用车道两侧布置口部,避免另设口部占用停车位地下车库的相连两个人员掩蔽单元均无室外出入口时,尽量共用一个室外出口,避免另设口部占用停车位注意人防门设置位置对停车位、管线的影响。
八、设备用房布置原则
一般情况建筑需设置的设备用房有锅炉房、换热站、消防泵房、消防水池、生活泵房、生活水箱、风机房、变电所、开闭所、柴油发电机房、消防控制室等。(先让设备专业确定都有哪些设备用房,大致面积,建筑专业选位置)
1、优先选择-1F塔楼范围下方“空位”布置设备房,充分利用其净高优势
2、优先选择-2F、-3F塔楼范围下方“空位”布置设备房,再选取塔楼以外不能停车的“死”空间布置剩余设备用房,设备房不应挤占机动车位,并且满足使用面积最小即可。
设备用房设置要求:
燃气锅炉房:(建规5.4.12强条)
面积估算:1%建筑面积。
A、净高(梁下)5.0米。
B、燃气锅炉房一般设燃气表间+锅炉间+燃气计量间。燃气表间和锅炉间均应设泄爆口(按照地面面积的10%设计)。
C、应设置在首层或地下一层靠外墙部位,不应布置在人员密集场所的上、下、左、右。
D、燃气锅炉房疏散门应直通室外或安全出口。
E、考虑烟囱的设置位置及出屋面。
F、燃气锅炉房内有集水坑。
制冷机房
螺杆机净高4米;离心机净高5米;溴化锂净高5米
面积估算:1%建筑面积。
换热站:
公建换热面积估算:0.5%建筑面积。
住宅换热站面积估算:约220~300平方米。
A、净高(梁下)4.0米。
B、热力公司要求放置地上或地下一层。
消防水泵房、消防水池:(建规8.1.6强条)
A、净高(梁下)3.0米。
B、消防水池只能放在地下一层且靠外墙布置,深度不能大于-5.0米(相对室外地面),地上消防车距离取水口1.0米高。(当有条件利用车道下方时,优先考虑车道下方位置做消防水池.)
C、附设在建筑内的消防水泵房不应设置在地下三层及以下或室内地面与室外出入口地坪高差大于10米的地下楼层。
D、消防水泵房疏散门应直通室外或安全出口。
E、消防水泵房应采取防水淹措施(建规5.4.12强条),设门槛。
F、在消防水池容积较大情况下,检修人孔可考虑设置优先顺序:消防水池顶面>泵房内板下>泵房内梁下,有效水位可加多1200~700mm,节约消防水池占地面积。
生活水泵房位置:
1、根据功能划分、使用要求、小区规模、服务范围、当地部门要求情况设置集中区域加压泵房,尽量设置在用水范围中心
2、由于防疫要求,一般单独设置,不设置单独配电房,靠墙安装落地式配电柜
3、考虑运行噪音,不应设置在毗邻居住用房的上层或下层,通常设置在(上层为架空层的)负一层地下室、负二层及以下地下室核心筒附近塔楼范围内
生活水泵房一般高度:
1、500支墩+2500水箱高度(2000有效水位)+700(梁下净空)+300(安装空间)=4000mm(非塔楼范围内)
2、500支墩+3500水箱高度(3000有效水位)+700(梁下净空)+300(安装空间)=5000mm(塔楼范围内)
一般住宅小区,生活水泵房都远离住宅20米。
风机房:
一般情况下一个4000平方米的地下车库设2个排风竖井(每个1㎡)和1个进风竖井(1㎡),相应设置3个风机房。风机房尽量布置在不能停车的空间;如占用车位,面积不能大于一个车位的面积。如果防火分区面积小区2000平米,则就需要一送一排就可以。
电气专业
变电所:
A、需要一侧靠外墙。梁下净高3.5米。
B、上、下、左、右不应有用水房间。
C、可设在在地下室,但不应设置在最下一层。(电业局一般要求设在地下一层)。如设置在地下时,室内地面高于相邻房间或走廊地坪。
D、不能与弱电房间贴临,如消防控制室、电信机房。
F、疏散门应直通室外或安全区域(走廊)。应考虑设备出入口的尺寸。
G、不能与爆炸场所贴临,如燃气锅炉房。
开闭所:
开闭所应设置在地上一层,净高4.5米。
开闭所应设电缆夹层,夹层高度1.8米。
电业局要求坡屋面,可结构找坡5%。
消防控制室:(建规8.1.7)
A、消防控制室净高3米。
B、附设在建筑内的消防控制室宜设置在首层或地下一层,宜布置在靠外墙部位。
C、消防控制室应采取防水淹措施(建规5.4.12强条),设门槛或地面抬高300。
D、消防控制室疏散门应直通室外或安全出口。
F、消防控制室不能贴临强电房间。
柴油发电机房:
A、柴油发电机房梁下净高大于3米。(并应根据柴油机容量确认机房净高,参见电气民规表6.1.3-1要求)
B、柴油发电机房宜设置在首层或地下一、二层,不应布置在地下三层及以下。不应设在用水房间正下方及贴临,不应布置在人员密集场所上、下及贴临。柴油发电机房应贴临外墙。
C、柴油发电机房应设储油间和排污泵坑。
储油间(门槛、储油1m³、防火墙、甲级防火门)
D、柴油发电机房应设送风、排风、排烟竖井。(竖井出地面尽量结合坡道或楼梯设置)
E、柴油发电机房宜设2个出入口。
注意:地下室层高紧张时,水电进线路由尽量不相互干扰。


本文标签: # CKTCC # 地下车库 # 地下停车场 # 地下车库如何合理设计 # 地下停车场如何合理设计 # 地下车库设计 # 地下停车场设计 # 地下车库地坪 # 地下停车场地坪 # 地下车库地坪漆 # 地下停车场地坪施工 # 江西地下车库地坪 # 江西地下停车场地坪 # 江西地下车库地坪漆 # 江西地下停车场地坪施工

陆先生:132-5100-4443(微信同号)
553893375@qq.com
鹰潭市高新技术开发区林安智慧商贸城B4-34
©2025  江西喜邦地坪  版权所有.All Rights Reserved.  
网站首页
电话咨询
微信号

QQ

在线咨询真诚为您提供专业解答服务

热线

40096-50096
专属服务热线

微信

二维码扫一扫微信交流
顶部